Hi All,
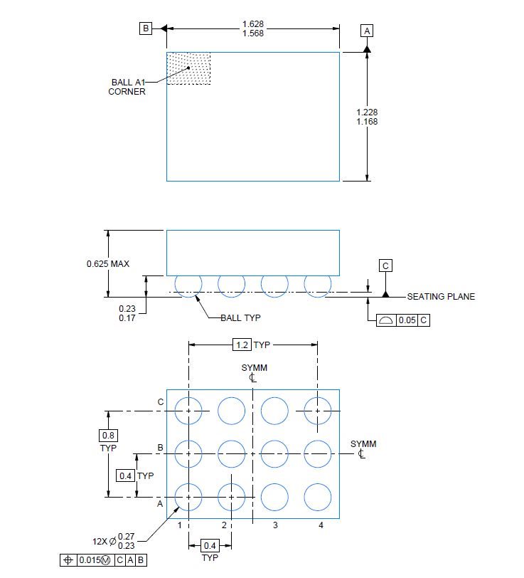
To compare PIN define and footprint picture as below, seems like not make sense, A,B,C definition are different about them. could you help to know that correct footprint for customer layout. thank you.
thanks you.
Mark Chen
This thread has been locked.
If you have a related question, please click the "Ask a related question" button in the top right corner. The newly created question will be automatically linked to this question.
Hi All,
To compare PIN define and footprint picture as below, seems like not make sense, A,B,C definition are different about them. could you help to know that correct footprint for customer layout. thank you.
thanks you.
Mark Chen